Fårtickegången 105
- 3 995 000 kr
- 5 rum
- 128 + 28 kvm
- TOMT 182 kvm
Stort och mycket välplanerat radhus med upp till 5 sovrum
Ljust och fint 2-plans sluttningsradhus på hela 156 kvm med möjlighet till 5 sovrum.
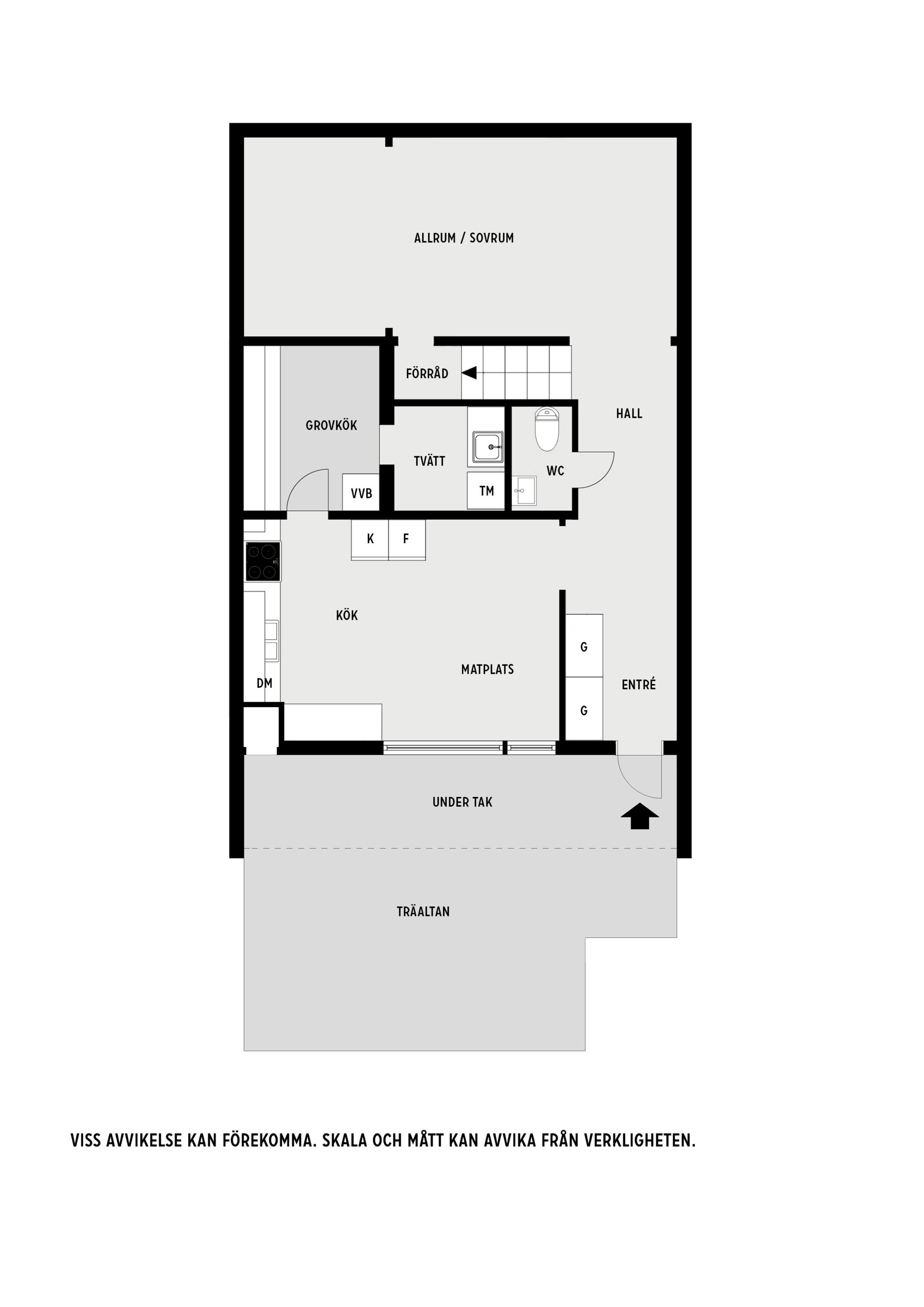
Entréplan med rymligt hall med klinkergolv och stor garderobsförvaring, ett rymligt familjekök med ekparkett (2019) och stor matplats, praktiskt grovkök och tvättrum. Här finns även en stor hall med ekparkett (2019) samt ett mycket stort (delbart) allrum med nytt vitt gipstak med infällda spotlights (2019).
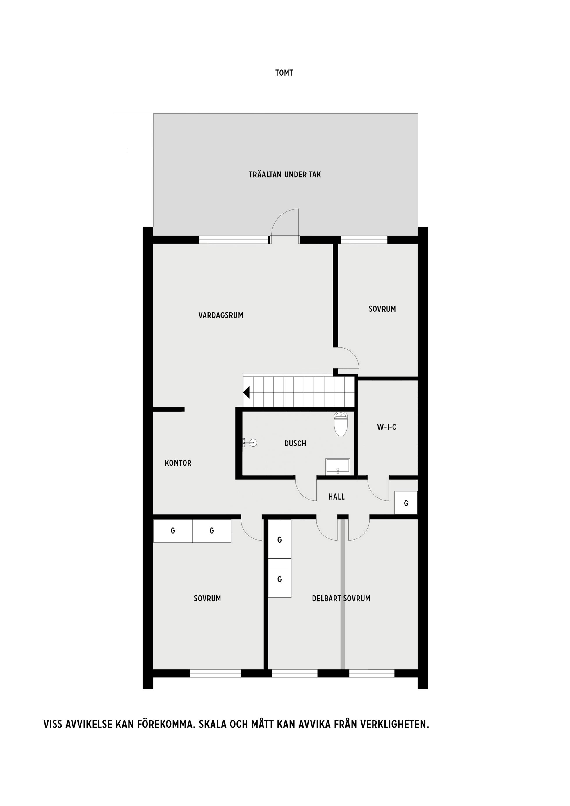
Övre plan har nya ekparkettgolv (2019) samt nya vita gipstak med infällda spotlights (2019). Ljust vardagsrum med helglasad altandörr ut mot stor träaltan under nytt plasttak samt den härligt lummiga tomten. Extra avdelat sovrum intill vardagsrummet. I vinkel mot vardagsrummet finns en stor praktisk hall/arbetsrum som leder vidare till sovrumshall med 2 stora sovrum varav ett mycket stort som är delbart till två rum. Bägge har 2 meter långa garderober. Nyrenoverat, ombyggt helkaklat duschrum 2019. Stor walk-in-closet / förråd.
Fasaden bytt sedan byggårt och alla fönster är bytta till 3-glas 2012 till 2023. Det mesta av elen har kompletteras med jord. Ny luftvärmepump 2025. Genomgående bytta innerdörrar.
Härligt läge nära, naturreservat, lekplatser, bollplan, garage/parkering och busshållplats.
- Solig och insynsskyddad tomt.
- Stort kök med mycket rymlig matplats.
- Totalrenoverat helkaklat duschrum.
- Möjlighet till hela 5 sovrum.
- Rejäla förvaringsutrymmen.
- Garageplats med laddbox samt parkeringsplats.
- Bytt fasad och fönster.
TOMTEN
Entrésida med en stor TRÄALTAN i perfekt s/v-läge med häck mot gången utanför. Altanen är delvis under tak från övervåningens överhäng. På baksidan finns en solig TOMT på upphöjd baksida med stor TRÄALTAN under tak och gräsmatta i fritt och ogenerat läge. Stort kösbärsträd.
FÖRRÅD OCH PARKERING
Litet kallförråd och cykelrum i gemensam byggnad.
Garageplats i länga med fjärrstyrd el-port, laddbox för elbil är installerad, 1 p-tillstånd/hushåll för extrabil.
OMGIVNING
Här bor du mycket naturnära intill fina Alby friluftsområde med fina promenad-och cykelvägar, utegym, badsjöar och bär-och svampskogar inpå knuten.
Nära även till lekplatser, fotbollsplan, garage, parkering och busshållplats.
Det är bara någon minuts promenadväg till Krusboda torg med Hemköp och pizzeria, Krusbodabadet och Krusboda skola. Här finns också stor lekpark med bollplan samt förskolorna Ballongen och Lek Och Lär Tyresö.
KABEL-TV OCH BREDBAND
Grundutbud kabel-TV via Tele2 och bredband via fiberuppkoppling från Tele2.
SAMFÄLLIGHETSAVGIFTER
I samfällighetsavgifter ingår bl.a poolanläggning/bastu i området, fast garageplats i garagelänga med fjärrstyrd elport, fri parkering, grundutbud kabel-TV via ComHem och bredband via fiberuppkoppling från ComHem.
BESIKTNING OCH ENERGIDEKLARATION
Huset är förbesiktigat 2026-02-05. Säljaren har även tecknat en dolda felförsäkring.
KOMMUNIKATIONER
Det är endast 5 minuters promenadväg till busshållplats Krusboda torg med mycket bra bussförbindelser med motorvägsbuss till Gullmarsplan och Centralen. Bussarna går var 5:e minut i rusningstrafik. Varannan till Gullmarsplan (ca 25 min) och varannan till Centralen (ca 35 min) samt var 15:e minut på dagtid till Gullmarsplan.
OMRÅDET
I området finns litet centrum med fin nyrenoverad Hemköp-butik och en jättebra pizzeria. Krusboda skola (6-års till 6:an), förskola och härlig POOLANLÄGGNING med 25 metersbassäng, barnbassäng, omklädningsrum, bastu och kiosk (badvärdar är i tjänst under alla öppningstider). I området finns även tre andra förskolor samt Dalskolan (åk 7-9) och Tyresö gymnasium.
I Krusbodas omedelbara närhet finns även stora härliga naturområden med bland annat Alby och Nyfors. Inom Alby naturreservat ligger Alby friluftsgård som är centrum för friluftslivet i Tyresö. Alby är ett närrekreationsområde med friluftsgård, motionsslingor, friluftsbad, värdefull natur och mycket mera. Här finns bland annat Sörmlandsleden, bondgård och ridhus. Uddby gård ligger i Alby naturreservat vid Albysjön, granne med friluftsgården. I omgivningarna finns även Tyresö Flatensjön, Nyfors och Tyresta Nationalpark med mängder av motionsspår och härliga naturupplevelser.
Det är även nära till Tyresö centrum med ett stort antal butiker, mataffärer, restauranger, apotek och vårdcentraler m.m. Samt golfbana, rackethall, simhall och ishall.
KÖPARENS UNDERSÖKNINGSPLIKT
Kraven på köparens undersökningsplikt är långtgående. Fastigheten skall undersökas i alla dess delar och funktioner. Finns det möjligheter måste köparen även inspektera vindsutrymmen och andra svåråtkomliga utrymmen. Särskild uppmärksamhet bör ägnas fuktskador (speciellt i källare och yttertak), rötskador, skador på vatten och avloppsanläggningar, sprickbildningar i fasad och grundmur samt skorstensstock. Upptäcker köparen vid sin undersökning fel eller symtom på fel i fastigheten eller är fastigheten över huvudtaget i sådant skick att fel kan misstänkas, skärps kraven på köparens undersökningsplikt. Om köparen inte själv kan dra några säkra slutsatser av sina iakttagelser, anses köparen normalt vara tvungen att anlita en sakkunnig person för att fördjupa sin undersökning.
Även de uppgift säljaren lämnar påverkar undersökningspliktens omfattning. Om t.ex. säljaren upplyser köparen om ett misstänkt fel kan det utgöra en varningssignal, som bör föranleda en mer ingående undersökning från köparens sida.
Köparen bör slutligen ha i åtanke att säljaren inte svarar för fel och brister, som köparen borde ha räknat med eller borde ha förväntat sig med hänsyn till fastighetens ålder, pris, skick och användning och anpassa sin undersökning till detta.
FAKTA
- Antal Rum 5 rum varav sovrum 3 - 5
- Boarea/Biarea 128 kvm / 28 kvm
- Tomtarea 182 kvm



































































